Wiehbergstraße 98
Lage & Umgebung
Wohnungen
Gebäude- & Wohnungsmerkmale
Gebäudetechnik
Überblick
Download Exposé
Home
Unsere Projekte
Über uns
Kontakt
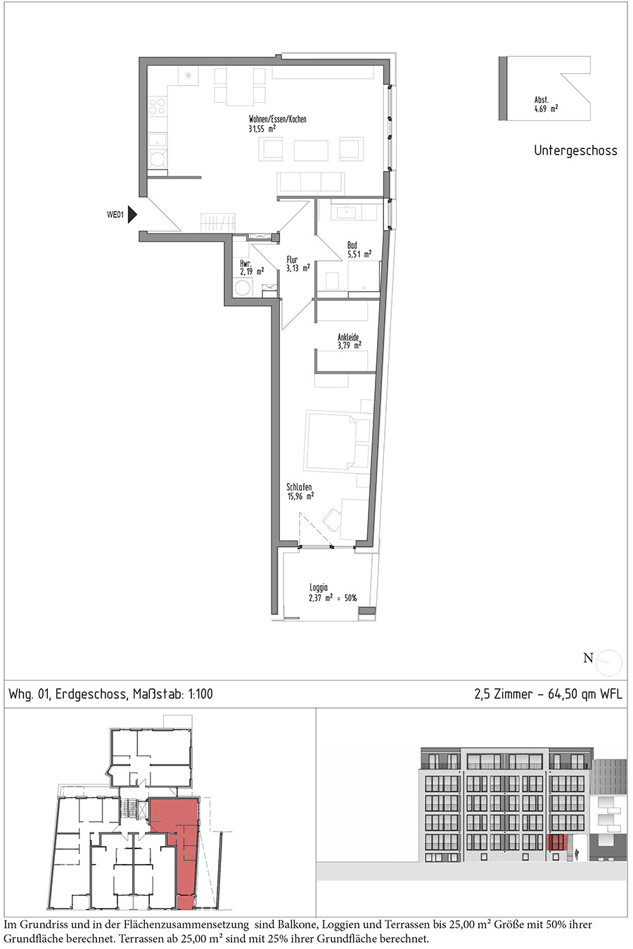
Wiehbergstraße 98 - Wohnung 1
Erdgeschoss
|
2,5 Zimmer
|
64,50 qm + Abstellraum 4,69 qm
|
verkauft
Wohnungen
Wohnung 1
Stadt
l
Bau
Hannover GmbH
Rechtliches
Impressum
Datenschutzerklärung