Wiehbergstraße 98
Lage & Umgebung
Wohnungen
Gebäude- & Wohnungsmerkmale
Gebäudetechnik
Überblick
Download Exposé
Home
Unsere Projekte
Über uns
Kontakt
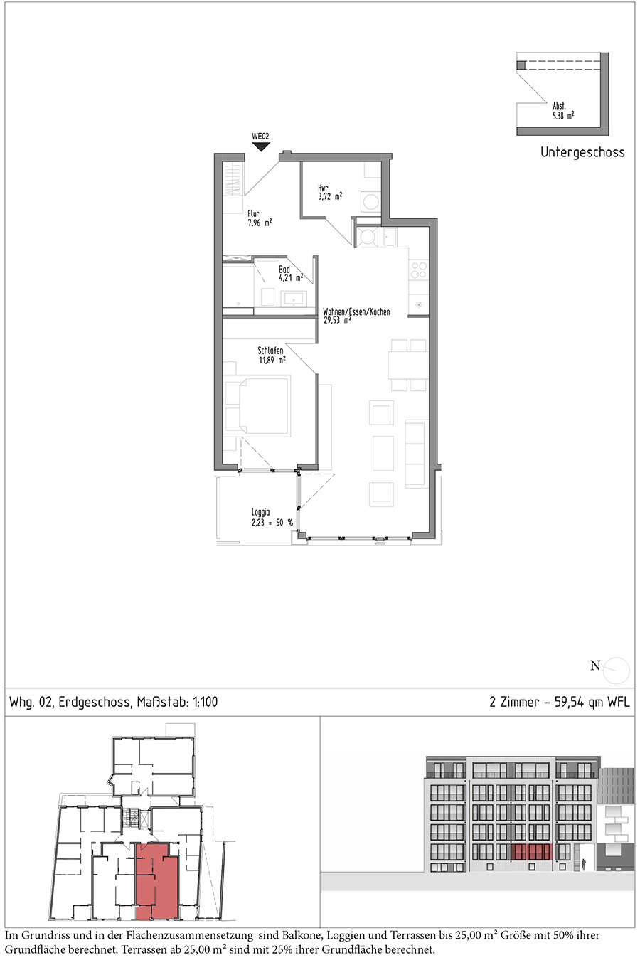
Wiehbergstraße 98 - Wohnung 2
Erdgeschoss
|
2 Zimmer
|
59,54 qm + Abstellraum 5,38 qm
|
verkauft
Wohnungen
Wohnung 2
Stadt
l
Bau
Hannover GmbH
Rechtliches
Impressum
Datenschutzerklärung