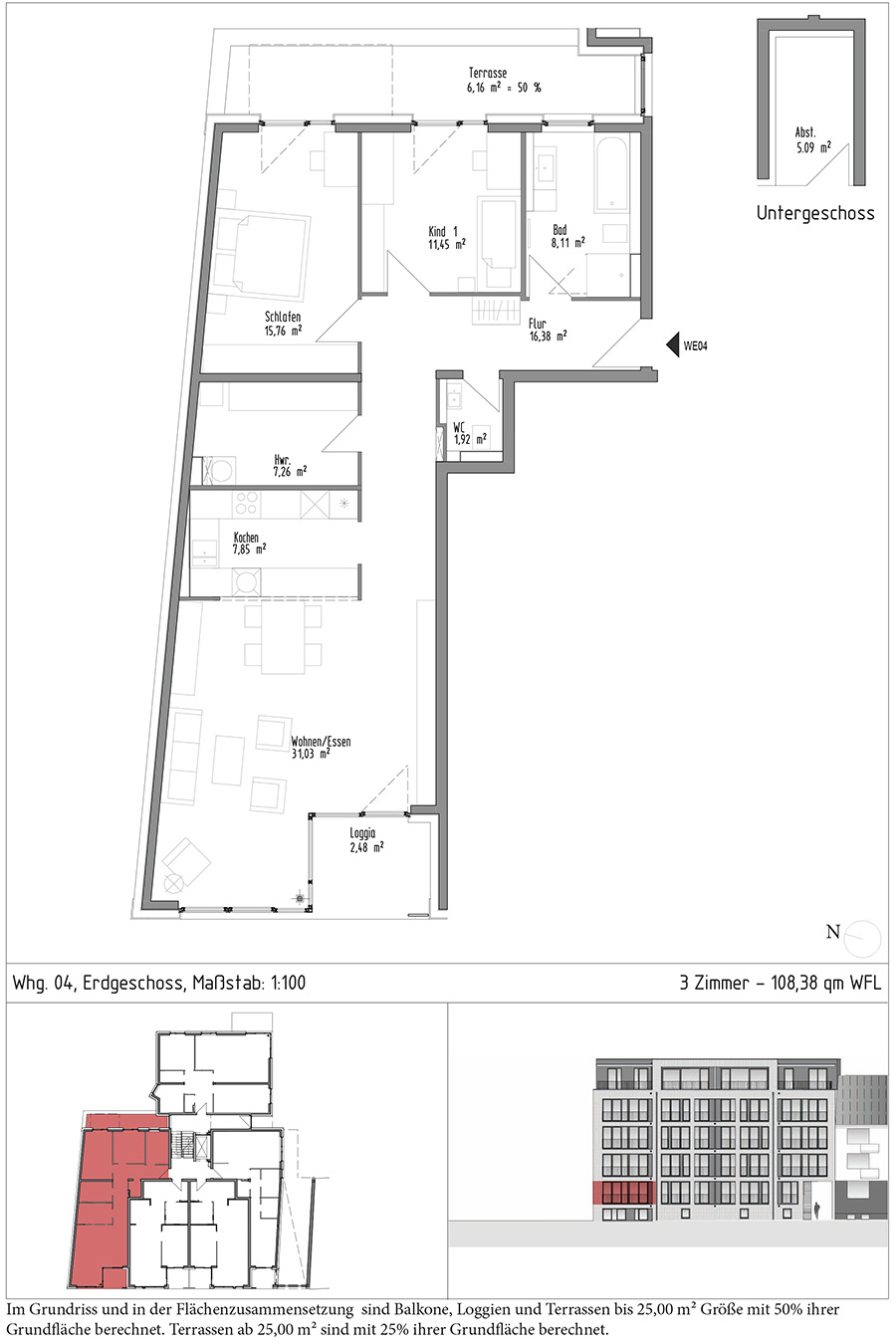
Wiehbergstraße 98 - Wohnung 4

Erdgeschoss | 3 Zimmer | 108,38 qm + Abstellraum 5,09 qm | Verkaufspreis: 512.248 €



Kontakt

Vertrieb HKImmobilien Heike Köhler e. K.
Schlesierdamm 16a
30916 Isernhagen

Ansprechpartner: Jörg-H. Hempelmann
E-Mail: hempelmann@hki-hannover.de
Tel: 0163-3094726