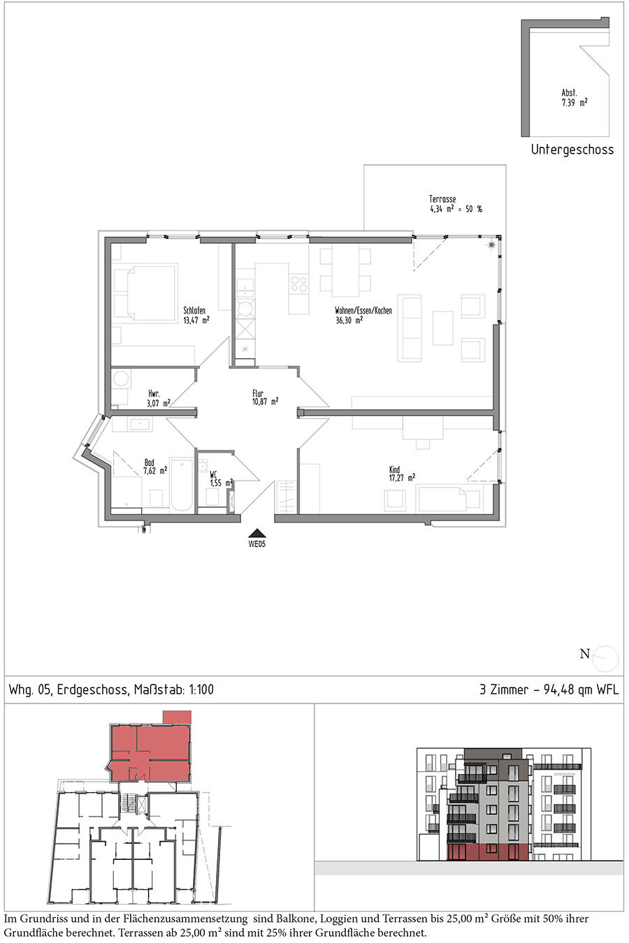
Wiehbergstraße 98 - Wohnung 5

Erdgeschoss | 3 Zimmer | 94,48 qm + Abstellraum 7,39 qm | Verkaufspreis: 465.219 €



Kontakt

Vertrieb HKImmobilien Heike Köhler e. K.
Schlesierdamm 16a
30916 Isernhagen

Ansprechpartner: Jörg-H. Hempelmann
E-Mail: hempelmann@hki-hannover.de
Tel: 0163-3094726