Wiehbergstraße 98
Lage & Umgebung
Wohnungen
Gebäude- & Wohnungsmerkmale
Gebäudetechnik
Überblick
Download Exposé
Home
Unsere Projekte
Über uns
Kontakt
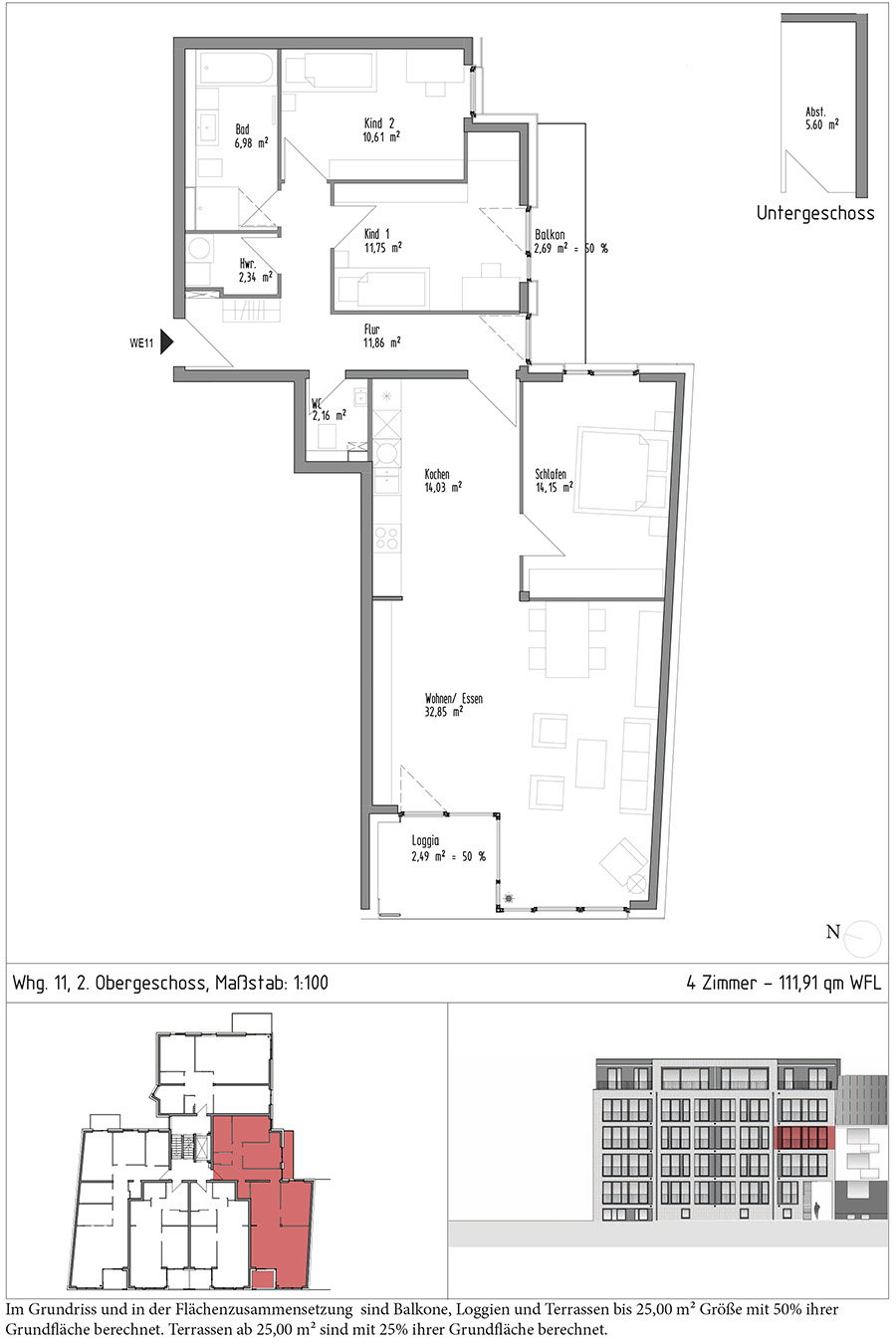
Wiehbergstraße 98 - Wohnung 11
2. Obergeschoss
|
4 Zimmer
|
111,91 qm + Abstellraum 5,60 qm
|
verkauft
Wohnungen
Wohnung 11
Stadt
l
Bau
Hannover GmbH
Rechtliches
Impressum
Datenschutzerklärung