Wiehbergstraße 98
Lage & Umgebung
Wohnungen
Gebäude- & Wohnungsmerkmale
Gebäudetechnik
Überblick
Download Exposé
Home
Unsere Projekte
Über uns
Kontakt
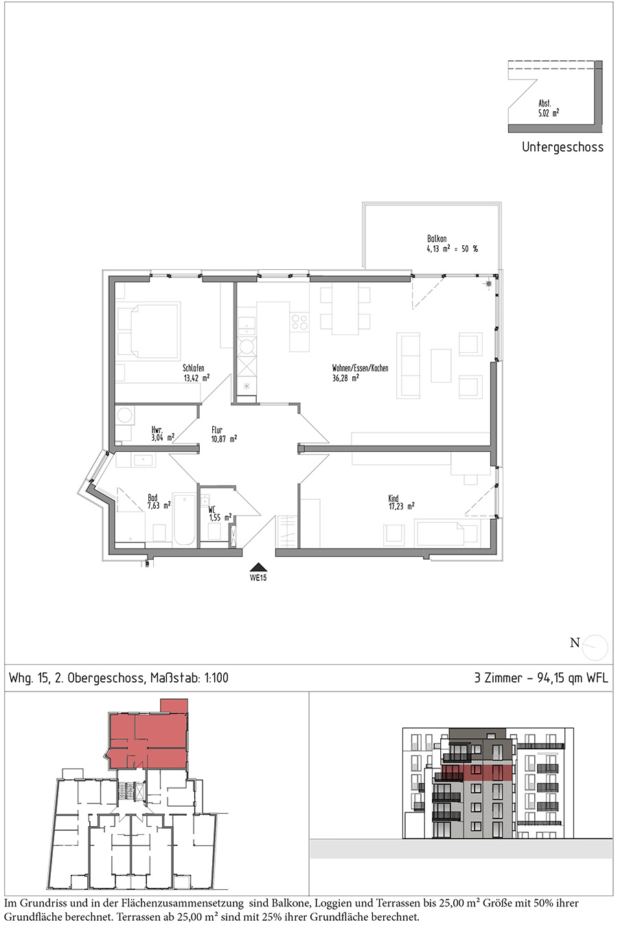
Wiehbergstraße 98 - Wohnung 15
2. Obergeschoss
|
3 Zimmer
|
94,15 qm + Abstellraum 5,02 qm
|
verkauft
Wohnungen
Wohnung 15
Stadt
l
Bau
Hannover GmbH
Rechtliches
Impressum
Datenschutzerklärung