Wiehbergstraße 98
Lage & Umgebung
Wohnungen
Gebäude- & Wohnungsmerkmale
Gebäudetechnik
Überblick
Download Exposé
Home
Unsere Projekte
Über uns
Kontakt
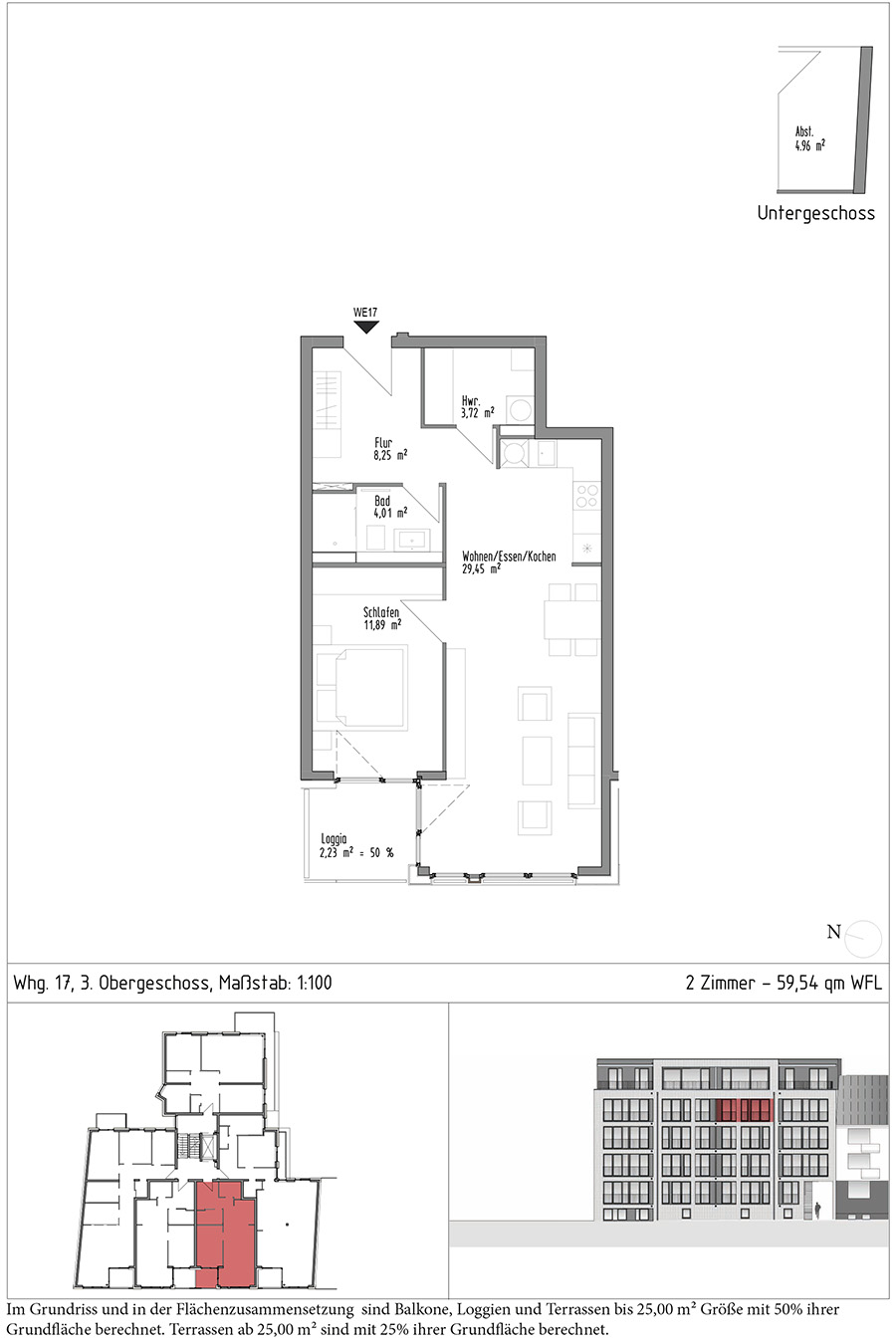
Wiehbergstraße 98 - Wohnung 17
3. Obergeschoss
|
2 Zimmer
|
59,54 qm + Abstellraum 4,96 qm
|
verkauft
Wohnungen
Wohnung 17
Stadt
l
Bau
Hannover GmbH
Rechtliches
Impressum
Datenschutzerklärung