Wiehbergstraße 98
Lage & Umgebung
Wohnungen
Gebäude- & Wohnungsmerkmale
Gebäudetechnik
Überblick
Download Exposé
Home
Unsere Projekte
Über uns
Kontakt
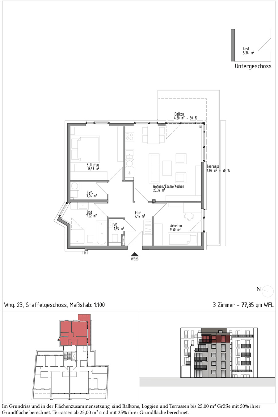
Wiehbergstraße 98 - Wohnung 23
Staffelgeschoss
|
3 Zimmer
|
77,85 qm + Abstellraum 5,34 qm
|
verkauft
Wohnungen
Wohnung 23
Stadt
l
Bau
Hannover GmbH
Rechtliches
Impressum
Datenschutzerklärung